Comune di Predosa (AL) - Procedura esecutiva 110/2021
Piena proprietą di abitazione
Modalità di partecipazione alle vendite senza incanto:
l’offerta in busta chiusa con le caratteristiche di cui all’art. 571 cpc dovrà contenere l’indicazione del prezzo, SONO AMMISSIBILI ANCHE OFFERTE INFERIORI FINO AL LIMITE DEL 75% DEL PREZZO BASE, del tempo e del modo di pagamento ed ogni altro elemento utile alla valutazione dell’offerta; contestualmente all’offerta dovrà essere incluse le somme a titolo di cauzione pari al 15% del prezzo offerto, con assegno circolare intestato a “Dott. Pierluigi Caniggia P.E. 110/2021”. Consegna delle buste presso lo studio del professionista delegato entro il 26.11.2024 ore 12,00 – si segnala che lo studio osserva i seguenti orari dal lunedì al venerdì dalle ore 08:30 alle 12:30 e dalle ore 14:30 alle 18:30. Per il lotto, la cauzione non dovrà essere inferiore al 15% del prezzo proposto nell’offerta. Apertura delle buste: il 27.11.2024 ore 09,00 presso lo studio del professionista delegato sito in Tortona (AL) Via Luca Valenziano n. 3. In caso di più offerte si procederà a gara sulla base d’asta più alta. il rilancio minimo, previsto dal provvedimento di nomina, nella misura di: - € 1.000,00 per il lotto 1; - € 1.500,00 per il lotto 2;
Tutte le ulteriori informazioni relative la presente vendita sono contenute nell’avviso di vendita immobiliare. Per maggiori informazioni rivolgersi al Professionista delegato e custode giudiziario Pierluigi Caniggia Dottore Commercialista via L. Valenziano n. 3, 15057 Tortona (AL) 0131 861342, al quale potrà essere richiesta la visita dell’immobile; al Perito estimatore Geom. Iberti Tiziana, studio tecnico sito in Alessandria (AL) – Via Montata 6 – indirizzi mail: studio@tizianaiberti.it - PEC tiziana.iberti@geopec.it
LOTTO 1:
Piena proprietà di abitazione, sito in Predosa (AL), Via Ovada, n. 8. Trattasi di porzione di fabbricato comprensivo di sedime elevato a tre piani fuori terra. L'unita immobiliare è così suddivisa: - al piano terra area cortilizia con ingresso su strada vicinale su cui è stata realizzata una tettoia aperta in legno come ricovero auto, porzione di area cortilizia su retro del fabbricato, un locale di sgombero ed una cantina. - al piano primo a cui si accede con scala esterna: terrazza coperta, ingresso-soggiorno con angolo cottura, scala di accesso al secondo piano, due disimpegni, un bagno e due camere da letto - al piano secondo sottotetto non abitabile (locale di sgombero). L’immobile è censito come di seguito: - foglio 8, particella 471, subalterno 20, indirizzo Via Ovada n. 8, piano T-1-2, comune PREDOSA, categoria A/2, classe 1, consistenza 7 vani, superficie totale: 173 m², rendita € 433,82. Tutti gli immobili risultano occupati dai debitori e i suoi familiari.
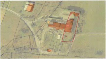
LOTTO 2:
Piena proprietà di un complesso immobiliare denominato “Ristorante Hotel Villa Magnolia”, sito in Predosa (AL), C.na Arzona, Via Ovada n. 111. Quanto al primo corpo: Trattasi di compendio immobiliare denominato Villa Magnolia sviluppato su tre piani fuori terra oltre a piano interrato. L’unità immobiliare in oggetto è destinata ad uso albergo e ristorante ed è distribuita su due livelli fuori terra oltre a piano cantinato. Al piano seminterrato sono posti i locali tecnici, il magazzino, la dispensa con le celle frigorifere. Il piano terra è così composto: Reception, sala ristorante, servizi igienici, cucina e centrale termica con accesso solo dall'esterno. Tramite scala interna si accede al piano primo composto da una Hall, tre camere doppie con bagno, due camere singole con bagno, due camere per disabili ed una grande terrazza. Quanto al secondo corpo: l’immobile in oggetto ad uso residenziale è un appartamento posto al piano secondo mansardato raggiungibile sia tramite vano scale comune che mediante ascensore. L'unità immobiliare è così suddivisa: ingresso - soggiorno, angolo cottura, terrazzo coperto, zona notte comprendente un disimpegno, due bagni, una lavanderia, tre camere da letto e un ripostiglio. Inoltre, vi sono terreni a completare il complesso. Il complesso immobiliare è censito come di seguito: - foglio 8, particella 583, subalterno 1, indirizzo Via Ovada 111, piano S1-T-1, comune Predosa, categoria D/2, rendita € 9.736,00; - foglio 8, particella 583, subalterno 2, indirizzo Via Ovada 111, piano 2, comune Predosa, categoria A/2, classe 3, consistenza 9,5, superficie totale 202 mq - totale escluse aree scoperte 197 mq, rendita € 834,08. - foglio 8, particella 583, subalterno 3, indirizzo Via Ovada 111, piano 2, comune Predosa, categoria C/2, classe 2, consistenza 127 mq, rendita € 196,77. - foglio 8, particella 583; - foglio 8, particella 468, SEMINATIVO, classe 1, comune Predosa, superficie totale 550 mq, R.D. 5,25, R.A. 4,83. - foglio 8, particella 518, SEMINATIVO, comune Predosa, superficie 1.095 mq, R.D. 10,46, R.A. 9,61. - foglio 8, particella 516, Bosco Ceduo, classe 2, comune Predosa, superficie totale 1.131 mq, R.D. 1,17, R.A. 0,18. - foglio 8, particella 470, seminativo, classe 4, comune Predosa, superficie 750 mq, R.D. 2,32, R.A. 2,52. Tutti gli immobili risultano occupati. Relativamente il sub 1, 2 e 3 gli immobili sono occupati con contratto di locazione stipulato in data 07/06/2017 Registrato a Ufficio delle Entrate di Alessandria il 07/07/2017 ai nn.3337-3T Tipologia contratto: 6 anni, scadenza 06/06/2023, salvo eventuale rinnovo tacito. Si segnala che il conduttore si è impegnato a rilasciare il complesso con effetto immediato alla data di emissione del decreto di trasferimento. Per i relativi approfondimenti, si rimanda alla perizia di stima del Geom. Iberti Tiziana.
Prezzo base lotto Unico € 140.500,00 SONO AMMISSIBILI ANCHE OFFERTE INFERIORI A TALE PREZZO, FINO AL LIMITE DEL 75% DEL PREZZO BASE (OFFERTA MINIMA PARI A € 105.375,00).
